40 Park Street, North Dunedin, Dunedin
Historic charm meets modern urban living
Enquire about this property
40 Park Street, North Dunedin, Dunedin
Historic charm meets modern urban living
Investments For Sale
$599,000
About
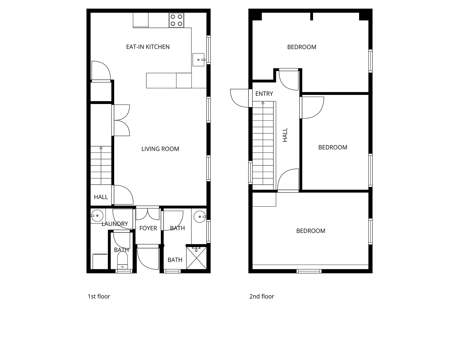
Originally built as a stable for one of Dunedin's historic homesteads, this distinctive property has been thoughtfully transformed into a low-maintenance, easy-living three-bedroom dwelling. Ideally situated within walking distance of the city centre, hospital, Polytechnic, and University, it delivers outstanding convenience for investors, professionals, and those seeking a central city base.
Agents
Clayton Sievwright
Residential and Investment Property Consultant
Mobile: 021 191 5555
Direct dial:
Aimee Marsh
Residential and Investment Property Consultant
Mobile: 027 209 3440
Direct dial:
Lane Sievwright
Director, Residential and Investment Property Consultant



