5/63 Opoho Road, North East Valley, Dunedin

Affordable six-bedroom investment

6
2

Enquire about this property

6
2

5/63 Opoho Road, North East Valley, Dunedin

Affordable six-bedroom investment

Investments For Sale

$649,000 - 8.4%

About

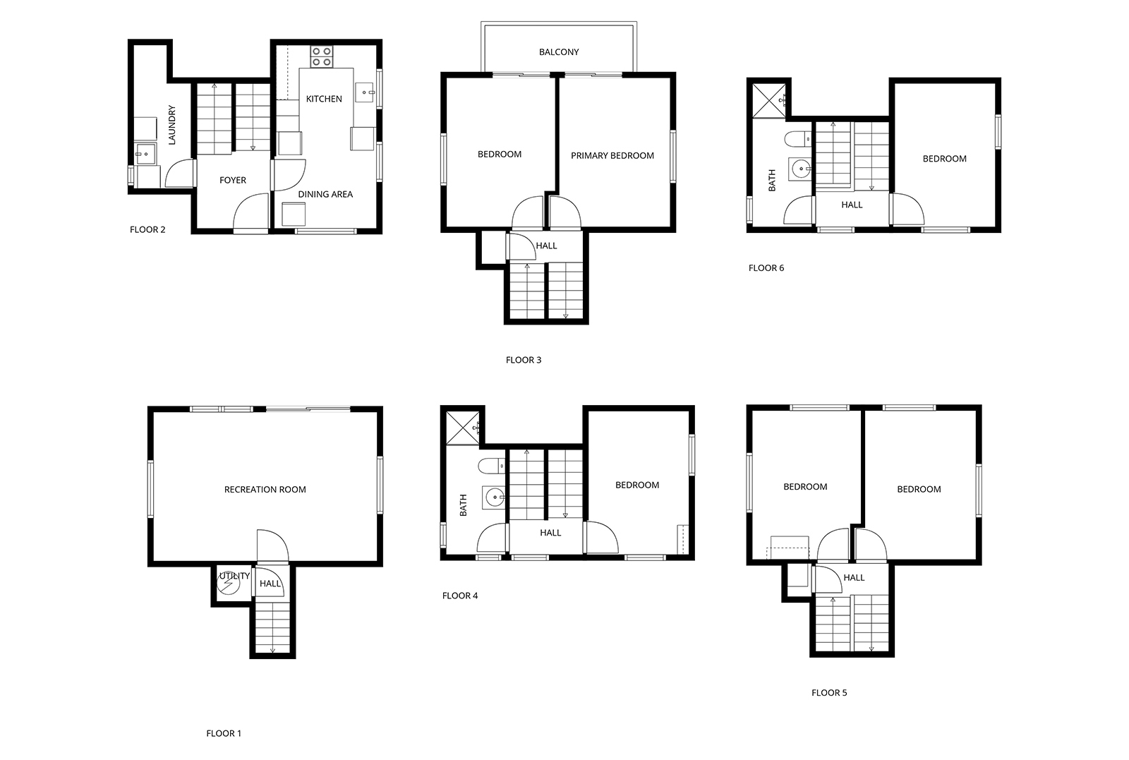
This modern, purpose-built six-bedroom stand-alone unit offers an exceptional value. Just a short stroll through the Botanical Gardens to the University and within easy reach of the Gardens Shopping Centre, it combines convenience with strong rental appeal.

read more +

Each of the six double bedrooms comes with built-in furniture, complemented by two bathrooms and a spacious living area designed for comfortable group living. Currently rented at $1,050 per week until the end of 2025 and rented at $1,080 per week for 2026, ensuring continued strong returns.

Heating is provided by a heat pump, and the property comes fully equipped with whiteware and an extensive list of chattels. Elevated for excellent afternoon sun, it also features an outdoor sitting area and valuable off-street parking.

Whether you're seeking a solid investment with reliable returns or a well-located home for children attending university, this property ticks all the boxes.

Do the numbers - opportunities like this don't last. Contact us today for a full information pack.

property details +

Web iD: IN12121
Approximate floor area: 150m2
Rateable value: $580,000

View Google Map of Property

Agents

Lane Sievwright

Lane Sievwright

Director, Residential and Investment Property Consultant

Mobile: 021 526 366
Direct dial:

Clayton Sievwright

Clayton Sievwright

Residential and Investment Property Consultant

Mobile: 021 191 5555
Direct dial:

Aimee Marsh

Aimee Marsh

Residential and Investment Property Consultant

Mobile: 027 209 3440
Direct dial: